WIP Dogeva (интерьерные визы)

Автор
Сообщение
На сайте c 28.07.2013
Сообщений: 1623
KZ17
Цитата wosserOne:
тот же любой пристрой к частному дому на отдельном фундаменте, но являющийся одним интерьерным пространством (постоянно "дышаший" и ходящий) - тотчас же опровергнет это ))

По этому геодезисты, без дела не сидят. И гоняют свои комплекс измерительные в хвост и в гриву.   

На сайте c 28.07.2013
Сообщений: 1623
KZ17
Цитата wosserOne:
для начинающего чертёжника не в команде, можно, мне кажется,  просто работать с норм бригадой, сразу объяснять что я, мол, буду выдавать размеры только для справки, буду с вами сидеть на объекте или прибегать чуть что, буду смотреть что происходит и тут же поправлять все нестыковки... заранее не беру на себя никакую ответственность ))

Поддерживаю. О этом и писал выше. Что чертёж на уровне ТЗ и дай Бог получится. 

На сайте c 05.01.2020
Сообщений: 8153
Цитата wosserOne:
Им звонили в офис прорабы и орали - где размеры?? ))) 

прорабы орут на дизайнеров? smiley-biggrin.gif вы там иерархию не попутали? Рома насмешил )) 

На сайте c 08.02.2018
Сообщений: 2484
:адуктО

а как бы вы строили вот такие квартиры? где все почти стены неперпендикулярные? (взято просто из инета, но в практике такие были) 

Цитата Катерина135:
прорабы орут на дизайнеров

ну ок, в крайне раздражённом виде ))

На сайте c 16.12.2010
Сообщений: 1257
EU
Цитата wosserOne:
стены и остальное строятся (на чертеже), по осям
Никому на стройке  миллиметры просто НЕ НУЖНЫ, кусок штукатурки отвалится или замажут непойми чем, усядется  - и нет ваших миллиметров. то же и с колоннами и откосами!

Все бы ничего, но дизайнер на этом этапе обычно не участвует. Может, конечно - сколько раз мы делали проекты по арх. чертежам с поправкой "уточнить по факту" - но проект потребует корректировки и надзора (впрочем, последний желателен всегда).

Иначе получатся два разных спорящих размера. А если строитель решит их вписать - ему придётся выбирать или то и то? А ему побоку - он сделает как написано

Это, видимо, подразумевает полное отсутствие взаимодействия между проектировщиком и исполнителем - а этот момент, как раз, интересует заказчика прежде всего (внимание, ему нужны не КАРТИНКИ, а ремонт). 

Плывут ли размеры? Да, немного. Поэтому в рабочке есть важные - те, которые нужно выдержать, и прочие - эти могут немного измениться. Ну, это не говоря об абсолютно рутинных моментах, возникающих в процессе работ, сколько ты всего ни придусматривай.

Цитата Tema001:
я уточнил, что это нужно и это работает

Для чего нужен 3Д-замер с погрешностью 1 мм в типичной 100 м2 квартире с типичным среднебюджетным ремонтом? Если я не продаю услуги такого сканирования, конечноsmiley-biggrin.gif

Покажите мне проект, требующий этого.

Я готов даже согласиться с тем, что скан удобен и может быть прекрасным инструментом для контроля работы, но сам проект НЕ БУДЕТ воплощен с подобной точностью. В этом нет смысла, даже если это и возможно.

Цитата wosserOne:
тот же любой пристрой к частному дому на отдельном фундаменте, но являющийся одним интерьерным пространством (постоянно "дышаший" и ходящий)

Ну так и... о чем мы спорим?) Технология сканирования - крутая, сканы - круто... Сами по себе.

На сайте c 05.01.2020
Сообщений: 8153
Цитата wosserOne:
хотя при чём тут иерархия?

при том, Рома, что дизайнер выдает задачу прорабу, а не наоборот) 

Цитата wosserOne:

девочки без опыта и прораб с которым всегда работаешь

это все частности.. 

На сайте c 28.02.2017
Сообщений: 2977
Omsk
Эх, я только взяла заказ на проектирование криволинейного небоскрёба, а тут такие диспуты
На сайте c 28.07.2013
Сообщений: 1623
KZ17
Цитата gunslinger:
Для чего нужен 3Д-замер с погрешностью 1 мм в типичной 100 м2 квартире с типичным среднебюджетным ремонтом?

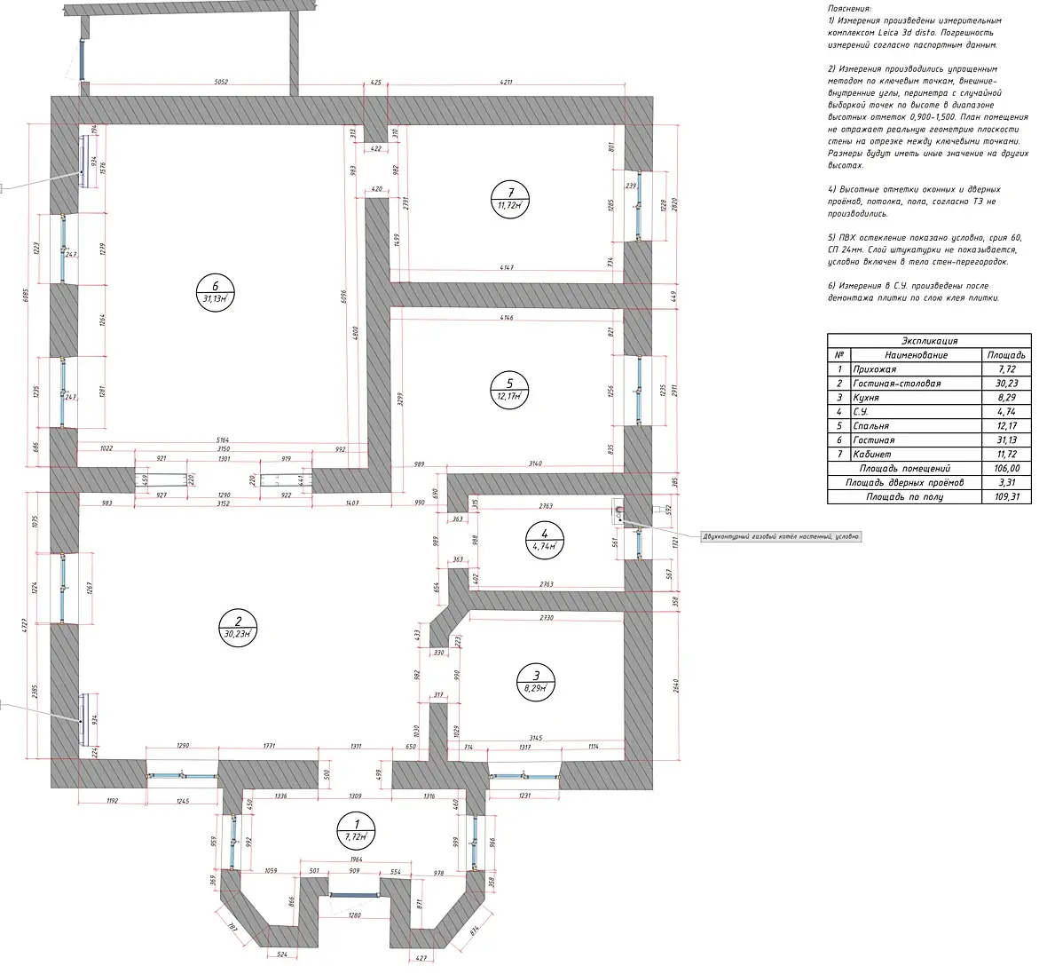
Такой точности сложно добиться. Давайте я вам самый простой пример приведу из практики. Зказчику были предложены варианты измерений. Он выбрал тот, где ему выдаётся план, с размерными линиями без цифр и он сам измеряет и ставит их. Результат такой получился

Я честно попробовал по ним сделать сборку. Ни чего не сложилось. Зак согласился, на самый бюджетный вариант  измерения. Итог получился такой

На сайте c 05.01.2020
Сообщений: 8153
Цитата Dogeva:
Эх, я только взяла заказ на проектирование криволинейного небоскрёба

покажи заказ? )) 

На сайте c 05.01.2020
Сообщений: 8153
и что тут у тебя? диз, виз, рабочка?
На сайте c 28.02.2017
Сообщений: 2977
Omsk
Цитата Катерина135:
и что тут у тебя? диз, виз, рабочка?

Это тот закрытый проект на самом деле. Рабочка. Сейчас кв чуть побольше, но такого же уровня сложности smiley-pardon.gif

На сайте c 05.01.2020
Сообщений: 8153
а виз пока не берешь?
На сайте c 28.02.2017
Сообщений: 2977
Omsk
Цитата Катерина135:
а виз пока не берешь?

Сборку делала.

Мелькали тут в заказах виз на санузлы отдельно, но прошли мимо. Кажется я мастер санузлов =))))

На сайте c 28.07.2013
Сообщений: 1623
KZ17
Цитата wosserOne:
внутренние перегородки равны по толщина наружным несущим?

Это старый дом, еще и материал комбинированный, кирпич, саман, бетон. Всё намешано. Да еще и слои штукатурки прост космические. Я после измерения предложил снять её до кирпича в СУ. Слои по итогу получились около 50 мм в среднем, на каждую сторону. За счёт этого получилось расширить. Решение обосновывал исходя из известной толщины перегородки. 

  

Цитата wosserOne:
обмеры прям до 1 мм? 

Машинка измеряет и записывает, там на самом деле после запятой ещё много знаков пишет, цифры в чртеже округлены. А точность её по паспорту, до 5 мм погрешность при измерении на 50 метров. И еще куча нюансов, про которые ни кто не пишет. А по высоте прям радует, на ход 500 метров, через 73 станции, если память не изменят, невязка всего 16 мм составила по высоте.    

Но даже с такой упрощенной версии можно написать рекомендации по выравниванию стен, там где это необходимо. На рассчитать и дать точные координаты, как это при подробных замерах. А именно рекомендовать

На сайте c 05.01.2020
Сообщений: 8153
Виз на ванны мы обсуждали, да )
На сайте c 28.02.2017
Сообщений: 2977
Omsk
Цитата wosserOne:
И ради  бога, при простройке вновьвозводимых - не делайте ЗАМКНУТЫЕ размерные цепочки!

Всё же возвращаясь к теме холивара. Я делаю так, как просит меня дизайнер и как нужно ему для дальнейшего общения со строителями. Всё. 

Цитата wosserOne:
вот поэтому кстати лучшие квалифиц. чертёжники всегда жили на объектах и были на авторском надзоре

Ценник на услуги таких чертёжников подозреваю тоже соответствующий? Которые владелец однушки, планирующий нанять в дальнейшем таджиков, готов заплатить?

Цитата wosserOne:

а как бы вы строили вот такие квартиры? где все почти стены неперпендикулярные?

Когда (если) я буду брать в работу криволинейные квартиры, это будет означать, что я изучила вопрос их построения.

Цитата wosserOne:

дизайнерши на фрилансе

Я не уточняю у дизайнеров, где они нашли своих заказчиков. Если не я возьму этот проект, то любой другой "выпускник курсов", а вовсе не многоуважаемые дипломированные архитекторы. Очень надеюсь что в случаях, когда действительно нужна высокая квалификация чертёжника, то она проверяется на основании больше чем одного примера и стоимости работы. 

На сайте c 28.07.2013
Сообщений: 1623
KZ17
Цитата Dogeva:
Всё же возвращаясь к теме холивара. Я делаю так, как просит меня дизайнер и как нужно ему для дальнейшего общения со строителями. Всё. 

И всё верно делает, как заказывают, так и делайте. 

Цитата Dogeva:
Ценник на услуги таких чертёжников подозреваю тоже соответствующий? Которые владелец однушки, планирующий нанять в дальнейшем таджиков, готов заплатить?

Однозначно выше, я вообще удивляюсь зачем они заказывают дизайн-проект, всё равно его ни кто читать не будет.

Цитата Dogeva:
многоуважаемые дипломированные архитекторы

Диплом, как и его отсутствие, совсем не говорит о компетенции и уровня квалификации специалиста. К примеру я без диплома, профильного, зарабатываю регулярно на исправлении ошибок некоторых  дипломированных специалистов. 

Цитата wosserOne:
ого!!! прикольненька!!! ))

Ещё прикольнее если полноценно измерить. Создается геодезическая основа с опорными точками, от которых выносятся и размечаются на объекте оси. А вот от них уже, можно дать задание на выравнивание стен и прочий монтаж всего и вся. Ниже пример. 

На сайте c 14.06.2012
Сообщений: 16878
Москва
Цитата wosserOne:
а как бы вы строили вот такие квартиры? где все почти стены неперпендикулярные? (взято просто из инета, но в практике такие были) 

Самую длинную стену контура на плане ровняю по горизонтали или вертикали, поворачивая план элайном в акаде. Если там две параллельных стены внутри есть, можно и по ним.

На сайте c 05.01.2020
Сообщений: 8153
Цитата Tema001:
Однозначно выше, я вообще удивляюсь зачем они заказывают дизайн-проект, всё равно его ни кто читать не будет.

++ это боль авторского надзора с такими строителями. они вообще не смотрят чертежи, им надо на пальцах по месту все рассказать показать 

На сайте c 28.02.2017
Сообщений: 2977
Omsk

О, хотела спросить. Предположим сделаны чертежи, визы, стройка идёт уже давно... В каком случае нужно вносить правки в сами чертежи?

Расскажу из своей практики. Долгая работа над сайтом, куча макетов, они уже свёрстаны и всё запущено. Тут руководитель решает что нужно переписать тексты, переставить блоки, какие-то мелкие правки. По итогу этого "причёсывания" я сидела и правила изначальные макеты дабы они теперь соответствовали новому сайту. Работа муторная, но я на окладе, поэтому любой каприз за ваш счёт =)

Цитата Катерина135:
они вообще не смотрят чертежи, им надо на пальцах по месту все рассказать показать 

Думаю хуже если не просят рассказать, а начинают импровизировать =) 

Читают эту тему: