WIP Dogeva (интерьерные визы)

Автор
Сообщение
На сайте c 28.02.2017
Сообщений: 2978
Omsk
Цитата holoduk:
возможный вариант

Для абстрактной семьи, где оба работают в офисе, отличный вариант. Для пары удалёнщиков — боль. По сути большая часть времени проводится за рабочим столом и это должно быть максимально комфортное помещение в квартире. 

Цитата Tema001:
На вопрос о софте: планировки и всё остальное делаю в 3ds max. 

О, я вот раньше сперва в 2д в фотошопе, потом строила в максе. Кухни иногда в икеевском планировщике, удобно из стандартных модулей собирать. 

Сейчас у меня есть прикольный набор моделек для ревита, но например кухня там очень детализирована, можно менять миллион параметров, но из-за этого модель тяжёлая и после каждого изменения подвисает на пару секунд.

На сайте c 22.09.2006
Сообщений: 1687
Оттуда

Dogeva

обязательно отдельное помещение?

* я тоже работаю удаленно, пробовал разные варианты, кабинет или просто рабочее место в одной из комнат,,,

*в данном варианте есть возможные рабочие места: на лоджии при утеплении, вместо кладовой в гостиной, есть возможность в спальне сделать побольше стол-место,,,

На сайте c 28.02.2017
Сообщений: 2978
Omsk
Цитата holoduk:
обязательно отдельное помещение?

Конкретно для меня наверно да. Я на прошлой странице писала что нужно 2 рабочих стола, желательно 80х150 или шире и желательно в разных помещениях. Спальня точно не вариант, балкон — прям очень не хотелось бы, плюс после утепления там станет тесновато. 

А для оформления проекта красивая планировка получилась, буду думать. 

Кстати ещё один вопрос наклюнулся. Вот эти простенки сбоку от шкафов — они действительно нужны? Это лишние работы, но главное лишние моменты где нужно выдержать чёткие углы и вертикали, иначе при встраивании будет боль. 

На сайте c 14.06.2012
Сообщений: 16549
Москва

Зачем на двоих удаленщиков два санузла, я вот реально не понимаю. Ладно бы если утром всем в одно время выходить надо. Или ребенок ещё.

Вы в них спать собрались что ли?

На сайте c 28.02.2017
Сообщений: 2978
Omsk
Скажем так. Есть любители надолго оккупировать санузел. Про поспать в ванне кстати тоже не шутка smiley-pardon.gif
На сайте c 25.10.2009
Сообщений: 996
Сочи
Цитата Dogeva:

Кстати ещё один вопрос наклюнулся. Вот эти простенки сбоку от шкафов — они действительно нужны? 

Только если в дизайне это дает какое-то неоспоримое преимущество. Не нужны, ибо мало маляров, кто реально сделает их строго под 90 и строго вертикально. С точки зрения мебельщика - лишний гемморой.

П.с. я бы тогда искала угловую квартиру, где больше окон, 4 или 5 в идеале. Тогда можно выгородить 2 кабинетика с купе-дверями.

Тоже живем вдвоем, и тоже два удаленщика. Тоже нет обеденного столаsmiley-biggrin.gif. Понимаю вашу боль.

На сайте c 21.01.2019
Сообщений: 6348
Только чтение

флейм

Дата выдачи:
03.11.2025 13:50:05

Действует до:
18.11.2025 00:00:00
Цитата Dogeva:
Скажем так. Есть любители надолго оккупировать санузел.

При коммунистах такого не было. Если в минус двадцать надолго зависнешь над дырой в полу, отморозишь все по самые гланды )

Кстати, медики говорят, что это не полезная привычка. Мож как-то скорректировать до разумных пределов?  

На сайте c 05.01.2020
Сообщений: 8198

Сейчас у меня на обеденном столе спит кот, все так удивляются, типа это норм, вы не гоняете его? Мы не едим за столом. Это мебель кота) Касаемо туалета. Последние лет 10 живу с одной ванной или ванна и туалет отдельно. Состав семьи 2-3-4человека. В основном 2. Поэтому лично мне сложно оценить комфорт наличия двух унитазов. Я не помню, чтоб это как-то напрягало. Хотя в идеале, мне бы хотелось вообще свою отдельную ванну. Наверное, если выбирать, оставила бы два су. Двух/трех шкафов хватает на такую квартиру. Есть, конечно, габаритные вещи, типа елки, которая даже в сложенном виде в коробке, целую полку в шкафу занимает, детская ванна, которая никуда не входит, даже вентилятор разбирается, в шкафу лежит.

Цитата Denis_21:
Мож как-то скорректировать до разумных пределов?  

Насколько знаю, врачи рекомендуют просто не брать в туалет с собой телефон. 

На сайте c 28.07.2013
Сообщений: 1614
KZ17
Цитата Dogeva:
Кстати ещё один вопрос наклюнулся. Вот эти простенки сбоку от шкафов — они действительно нужны? Это лишние работы, но главное лишние моменты где нужно выдержать чёткие углы и вертикали, иначе при встраивании будет боль. 

Всё зависит от ситуации. Например, у вас стена под шкаф длинная и она имеет завал по вертикале, а вы не хотите её выравнивать, в этом случае проще построить простенок, который прикроет торец шкафа чем изготовить кривой шкаф. Или, вы будете все время наблюдать кривую щель. Продолжая тему с шкафом, при использовании простенков, можно отстреляться не заказным шкафом. Так же ситуация зависит от того какие вы плинтуса используете, если это классические решения, то сделать красивым примыкание шкаф стена плинтус сложно. Также при отсутствии простенков повышается требование не только к вертикальности стены но и к шкафу. Его торцевая часть должна быть достаточно эстетична. Не забываем про вкусы, кому то нравится наблюдать кусок сплошной стены а не торец шкаф. Ну и самое главное это повышение риска что что пойдёт не так, а выяснится это на этапе монтажа мебели.  Как итог, я больше за простенок, чем его отсутствие. Но имеет место быть оба варианта.  

На сайте c 14.06.2012
Сообщений: 16549
Москва
Цитата Dogeva:
Есть любители надолго оккупировать санузел.

Это очень вредно для жопы
 

Цитата Катерина135:
Двух/трех шкафов хватает на такую квартиру.

Да кааааак? У меня один шкаф полностью - это просто моя одежда, причём не верхняя, а джинсы, футболки, рубашки, носки и всё такое. А есть ещё куртки, обувь.

Не ну если постоянно дома работать в одной пижаме, то наверное парой шкафов на все свои вещи можно обойтись.

На сайте c 05.01.2020
Сообщений: 8198
Цитата Yehat:
Да кааааак? У меня один шкаф полностью - это просто моя одежда, причём не верхняя, а джинсы, футболки, рубашки, носки и всё такое. А есть ещё куртки, обувь.

Щас расскажу ) у меня мало одежды. Сейчас вот снова на авито продаю, шкаф разбирала. У меня джинсы всего одни, остальное пиджаки  и платья, это все умещается на паре полкок и паре штанг. Смотри, около 10 платьев входит в одну икеевсеую небольшую коробку. + секция для верхней одежды. К осени докуплю гардероб, остальное снова продам и выброшу. Все детские вещи у меня умещается на двух полках икеевского шкафа, и вещей там целые стопки. У меня прям минимализм, постельного белья комплекта 3, полотенец ну 10 максимум. Выходит из строя, обновляю. Я даже еду покупаю каждый день, у меня запасов ноль, холодильник пустой к ночи. Одна пачка гречки, риса, рожек, ну чая 3 пачки. консервов ноль. Вот сейчас 2 шампуня, просто первый уже заканчивается. У меня все поштучно) и на кухонной столешке стоит только 1 чайник. Такой я человечек) половину из того, чем у меня шкафы заняты я не пользуюсь, мультиварка, пароварка, какие-то чехлы на коляски, коробки от техники на случай переезда. Если все это выбросить, у меня половина шкафов освободится. 

На сайте c 25.10.2009
Сообщений: 996
Сочи
Цитата Yehat:

Да кааааак? У меня один шкаф полностью - это просто моя одежда, причём не верхняя, а джинсы, футболки, рубашки, носки и всё такое. А есть ещё куртки, обувь.

Не ну если постоянно дома работать в одной пижаме, то наверное парой шкафов на все свои вещи можно обойтись.

Вы под шкафом подразумеваете трехметровую махину или что-то маленькое? 

Секция 100-120 см. шириной, в ней штанга, входит 25-30 плечиков, куда больше? Мы ж не Киркоров)). Под штангой 2 ящика под белье. Под ящиками - пустое место под коробки с несезонной обувью. Над штангой антресоль, там несезонные вещи, сумки, хлам. Это на одного.

Верхняя одежда в прихожей, чо там, те же 100-150 см. На всех.

Количество вещей легко лечится частыми переездами). 80% барахла выкидывается из жизни навсегда.

На сайте c 14.06.2012
Сообщений: 16549
Москва
Цитата Agapova:
Вы под шкафом подразумеваете трехметровую махину или что-то маленькое? 

Секция Пакс 2,5 метра высотой. У меня только футболок штук 15-20, и я считаю что это немного.

На сайте c 05.01.2020
Сообщений: 8198
К слову о переездах, я в мск относительно недавно, и это уже четвёртая квартира ) есть вещи, которые , перевожу туда сюда просто потому, что не решила, что с ними делать. Ту же ванну детскую, на авито выставила, никто не берет, соседей поспрашивала с ляльками, у них есть. Лежит на лоджии щас. Какие-то коробки с проводами, гвоздями, хз зачем оно мне. Ну вот тоже место занимает. Много непонятной посуды, типа контейнеры для еды, детские бутылки. Тоже вот для чего они лежат? Надо решиться и выставить на помойку) кому надо, заберут.
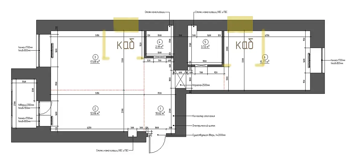
На сайте c 22.09.2006
Сообщений: 1687
Оттуда

Dogeva

учитывая пожелания, такой вариант

На сайте c 14.06.2012
Сообщений: 16549
Москва
Цитата Катерина135:
на случай переезда.

Цитата Agapova:

лечится частыми переездами)

Понятно. Это не про меня) Меня никуда не переносит и не переезжает, наскитался я))

На сайте c 28.07.2013
Сообщений: 1614
KZ17
Цитата Yehat:
Это очень вредно для жопы

Мне кажется речь больше за водные процедуры. Там выше было что-то про поспать в ванной...  

Цитата Agapova:
Количество вещей легко лечится частыми переездами). 80% барахла выкидывается из жизни навсегда.

Сказать любимой что мы переезжаем, что ли... Пусть ликвидирует своё нечего носить)

На сайте c 14.06.2012
Сообщений: 16549
Москва
Цитата Tema001:
Там выше было что-то про поспать в ванной...  

но это было после "оккупировать санузел"  ))

На сайте c 28.02.2017
Сообщений: 2978
Omsk

Хлам имеет свойство занимать всё отведённое под него пространство и ещё немного сверху =(

Цитата Катерина135:

Я даже еду покупаю каждый день, у меня запасов ноль, холодильник пустой к ночи

Ой, это моя проблема. Эффект хомяка, мне в продуктовые нельзя, всегда покупаю что-то про запас. Морозилка постоянно забита наглухо.

Цитата Yehat:
Это очень вредно для жопы

Ой всё

На сайте c 25.10.2009
Сообщений: 996
Сочи
Цитата Dogeva:

Ой, это моя проблема. Эффект хомяка, мне в продуктовые нельзя, всегда покупаю что-то про запас. Морозилка постоянно забита наглухо.

У меня в морозилке только лед кубиками. Пятерочка ж в соседнем доме, пусть у себя все это хранят, нечего мне морозилку пачкатьsmiley-biggrin.gif

Читают эту тему: