Вопросы от новичка. Archicad

Автор
Сообщение
Активность: 0
На сайте c 28.05.2021
Сообщений: 4
Добрый вечер! Помогите понять причину некорректного отображения плинтуса в 3д (плинтус создавался с помощью сложного профиля). На плане этажа все выглядит без выступов, а при переходе в 3д на углу торчит выступ. При построении у несущих стен такого нет, проблема возникает только внутри комнаты у перегородок. 

На сайте c 26.07.2008
Сообщений: 4015
Москва
Цитата alina.kaznina:
причину некорректного отображения плинтуса в 3д

можно закинуть в другой слой со своей цифрой (т.к. скорее всего со стеной взаимодействует)

Активность: 0
На сайте c 28.05.2021
Сообщений: 4

Добрый вечер! Подскажите, пожалуйста, почему не получается создать отверстие в балке? (Archicad 20, напольная плитка создана с помощью балки). Нажимаю на линию привязки и в окне нет такой функции.

На сайте c 26.07.2008
Сообщений: 4015
Москва
Цитата alina.kaznina:
в окне нет такой функции

а почему а балке она должна быть?

Активность: 0
На сайте c 28.05.2021
Сообщений: 4

Цитата Uraken:
Цитата alina.kaznina:
в окне нет такой функции

а почему а балке она должна быть?

Смотрела уроки по использованию балки, и в некоторых есть информация, что такую функцию можно использовать. Возможно я не так поняла информацию? Есть ли какой-либо способ вырезать угол в моем случае?

На сайте c 14.08.2021
Сообщений: 1
Привет. Столкнулась с таким моментом, если кто в теме, подскажите пожалуйста. Возможно ли настроить в ArchiCAD  отображение невидимой части предмета штрихпунктирной линией в 2D проекции. Например что бы невидимая часть стула под столом,  отображались штрихпунктиром или стиральная машина под раковиной. Заранее спасибо.
На сайте c 29.10.2013
Сообщений: 238
Москва
Добрый вечер. Кто в курсе, можно ли поменять шаблон в уже существующем проекте? Делал лазерное сканирование дома, мне прислали проект уже в архикаде, но я хочу подгрузить свой шаблон, на по сути готовый проект, или только с нуля все строить в своем шаблоне?
На сайте c 18.01.2008
Сообщений: 243
Санкт-Петербург
Цитата Meriutsa:
Добрый вечер. Кто в курсе, можно ли поменять шаблон в уже существующем проекте? Делал лазерное сканирование дома, мне прислали проект уже в архикаде, но я хочу подгрузить свой шаблон, на по сути готовый проект, или только с нуля все строить в своем шаблоне?

нельзя шаблон обновить.

можете в новый вайл импортировать геометрию из скана через импорт, или буфер обмена

На сайте c 26.02.2013
Сообщений: 158
Москов
Не нашел, куда лучше написать :) Пусть будет вопрос от новичка :D Такая бесячая проблема, которая преследует давненько, но все как-то забивал на нее. При некоторых действиях в архикаде, например при применении размерной линии, активируется стандартный звук виндовса (У меня 10ка), по типу как когда вылазит сообщение об ошибке или любое предупреждение. И он так "трунькает" без остановки каждый раз при создании размерной линии. Кто знает, как вырубить? И сталкивался ли кто вообще с этим?
На сайте c 26.09.2006
Сообщений: 5306
Белокаменная


иат

Дата выдачи:
01.11.2025 06:16:59

Действует до:
09.11.2025 00:00:00
Цитата necBTpuko:
Не нашел, куда лучше написать :) Пусть будет вопрос от новичка :D Такая бесячая проблема, которая преследует давненько, но все как-то забивал на нее. При некоторых действиях в архикаде, например при применении размерной линии, активируется стандартный звук виндовса (У меня 10ка), по типу как когда вылазит сообщение об ошибке или любое предупреждение. И он так "трунькает" без остановки каждый раз при создании размерной линии. Кто знает, как вырубить? И сталкивался ли кто вообще с этим?

А здесь что твориться, в Параметрах?

На сайте c 29.10.2013
Сообщений: 238
Москва
Ребят, как решить эту задачу, просто мозг кипит уже. В общем надо сделать кровлю но так чтобы ее верхняя часть была под углом, то есть один угол выше (точка 1), другой ниже (точка 2). У меня получается только ровно, то есть точка 1 и 2 на одном уровне, не могу опустить точку 2, как блин это сделать? 

На сайте c 08.08.2008
Сообщений: 258
Москва
Измените направление Опорной линии крыши (она выделена синим) и все получится. Как конкретно - сказать трудно, экспериментируйте и поймете в процессе.
На сайте c 26.09.2006
Сообщений: 5306
Белокаменная


иат

Дата выдачи:
01.11.2025 06:16:59

Действует до:
09.11.2025 00:00:00
В помощь к Изменению направления Опорной Линии, как сказала Mitridat, есть хорошоее дополнение MeshtoRoof, из стандартного набора дополнений ArchiCADa.На ютубе полно роликов по запросу.
На сайте c 20.07.2015
Сообщений: 134

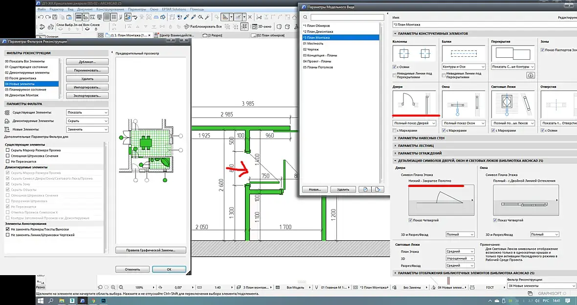
Вопрос модельный вид и фильтр реконструкции.В модельном виде установлено дверь символ "низкий закрытый"А реконструкция однозначно показывает полный и открытый.???

На сайте c 29.10.2013
Сообщений: 238
Москва

Коллеги, такое вопрос, не раз замечаю что время от времени во время работы в архикаде он начинает подтупливать, например жму линейный размер, он секунду думает,  жму еще что он опять сек думает, после того как перезагружаю все начинает быстро работать, что с ним не так?

Народ, кто может объяснить логику, никогда в это не заморачивался, и не могу понять логику такой работы линии привязки относительно наружной поверхности и внутренней. Почему линяя привязки ложится по разному на внутреннюю и наружную поверхность если строить стену в разных направлениях, влево вправо, вниз вверх. А если начернить допустим комнату с права на лево с наружной привязкой, три стены чертить в одном направлении, а четвертую с лева на право и для нее потом поменять линию привязки для того что корректно пересекалась, то тогда визуально она будет в внешней привязкой, а по факту с внутренней, и как потом допустим считать площадь стен через каталог, если какие то стены одни, какие то другие?

На сайте c 26.09.2006
Сообщений: 5306
Белокаменная


иат

Дата выдачи:
01.11.2025 06:16:59

Действует до:
09.11.2025 00:00:00
Цитата Meriutsa:
и как потом допустим считать площадь стен через каталог, если какие то стены одни, какие то другие?

Ну сделайте все одни, и считать будет правильно.
Активность: 0
На сайте c 25.03.2018
Сообщений: 4
Привет. Помогите экспортировать проект из архикада в маю без триангуляции
На сайте c 21.08.2013
Сообщений: 3776
Не резиновая
Цитата xene99:
Привет. Помогите экспортировать проект из архикада в маю без триангуляции

Где ссылка?

На сайте c 25.10.2016
Сообщений: 6

Помощь в Archicad

https://www.avito.ru/moskva/predlozheniya_uslug/pomosch_v_archicad_arhikad_1223558690    

Канал для архитекторов и дизайнеров

https://zen.yandex.ru/id/5f5208622875dd647214c662    

На сайте c 21.08.2013
Сообщений: 3776
Не резиновая

yaroslav211293

Тут Архикодом заинтересованы всего 2,5 человека, которые сами тебя научить смогут). Иди на кадстудиору или двгру там народу больше.

Читают эту тему: