WIP Dogeva (интерьерные визы)

Автор
Сообщение
На сайте c 28.02.2017
Сообщений: 2977
Omsk

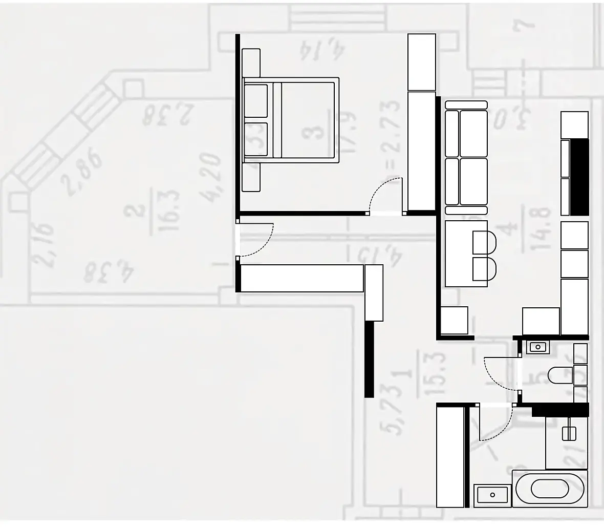
Планировка выглядит вот так

И либо оставить всё как есть, либо оттяпать часть гостиной под коридор-гардеробную и сделать 2 изолированные комнаты:

 

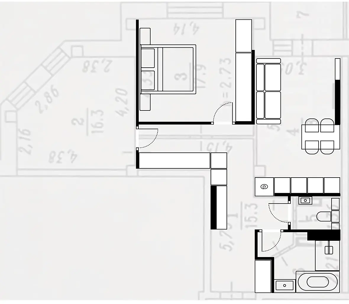
Начала собирать в 3д, поняла что ходить за угол к холодильнику и СВЧ такое себе мероприятие:

Фоточки ремонта. На полу линолеум, хз можно ли безболезненно поменять на плитку и ламинат или ещё и стяжку снимать и перезаливать:

 

 

На сайте c 05.01.2020
Сообщений: 8153
ты ж не можешь коридор за счет комнаты расширить. или что-то уже изменилось?
На сайте c 25.10.2009
Сообщений: 998
Сочи

Хз, я бы не смотрела в сторону такой квартиры. Слишком много стен с соседями, комнаты непрямоугольные, коридор как ни крути здоровый выйдет. Исходник неудачный, конфету не сделаешь. И ремонт тут глобальненький нужен: переплатите за ремонт, а потом все это взорвать-вынести. Может, я полной картины не вижу, район классный может быть, или крутой вид из окна, или цена подарочная. Но чот тут слиишком много вложений в ремонт нужно, тогда уж в сторону новостроек смотреть, вайт бокс какой-нибудь. 

Или это просто концепция руку набить?

На сайте c 05.01.2020
Сообщений: 8153
мне кажется, этому дому лет 10
На сайте c 28.02.2017
Сообщений: 2977
Omsk

Цитата Катерина135:
ты ж не можешь коридор за счет комнаты расширить. или что-то уже изменилось?

Обозначить как гардеробную разве не? Оттяпывают же куски спальни для гардеробных.

Цитата Катерина135:

мне кажется, этому дому лет 10

Около 20, ремонту думаю примерно столько же.

Цитата Agapova:

Но чот тут слиишком много вложений в ремонт нужно, тогда уж в сторону новостроек смотреть, вайт бокс какой-нибудь.  Или это просто концепция руку набить?

Не, вот эта квартира и та что я делала для проекта — я их реально рассматриваю. Цена примерно одна, без ремонта даже на пару сотен дороже. У обеих квартир (домов) есть весомые плюсы и весомые минусы. Я хз как в других регионах, а у нас под мои критерии отбора почти ничего не подходит.

Цитата Agapova:
переплатите за ремонт, а потом все это взорвать-вынести

В текущей ситуации вторичка с ремонтом стоит дешевле чем новостройка в черновом =( 

Ну и новостройка это постоянные ремонты соседей ближайшие хз сколько лет

На сайте c 21.01.2019
Сообщений: 6574
Только чтение

нехорошо

Дата выдачи:
04.04.2026 22:12:42

Действует до:
19.04.2026 00:00:00
Цитата Dogeva:
Ну и новостройка это постоянные ремонты соседей ближайшие хз сколько лет

Дважды въезжал в новостройку, не так страшен черт... )

На сайте c 05.01.2020
Сообщений: 8153
Цитата Dogeva:
Ну и новостройка это постоянные ремонты соседей ближайшие хз сколько лет

года 2-3

На сайте c 22.09.2006
Сообщений: 1908
Оттуда

Катерина135

Увеличение площади коридора за счет жилой комнаты допустимо. Однако, нужно помнить о том, что в соответствии с законом(СП 31-107-2004), жилое помещение должно быть площадью не менее 11 кв.м, а шириной не менее 2,25 м с естественным освещением и приборами отопления.

Dogeva

что-то придумать можно, но ремонт тут глобальный будет,,,

жалко размеров мало,,,

На сайте c 28.02.2017
Сообщений: 2977
Omsk

Цитата holoduk:
ремонт тут глобальный будет

Я же правильно понимаю что поэтапно тут никак? Но в целом подкупает вариант заселиться, пожить как есть, собраться с мыслями (и финансами) и только после этого начинать ремонт.

Цитата holoduk:

жалко размеров мало

Да я сама по фото что-то пыталась восстановить, а планировку с боем у риэлтора выбивала, сама начинала рисовать вообще по планировке другой аналогичной квартиры =( 

Есть видосик аналогичной квартиры в другом доме (у нас таких типовых свечек довольно много по городу), как раз с 2 отдельными комнатами. Я вот хз есть ли смысл ещё увеличивать коридор на 60см и ставить там шкафы. В принципе мест хранения получается и так достаточно с учётом лоджии и кладовки на этаже. 

https://www.youtube.com/watch?v=VKRbzizW3VQ 

На сайте c 25.10.2009
Сообщений: 998
Сочи

Dogeva, если квартира надолго, чтоб состариться, оч рекомендую смотреть в сторону домов 5-8 лет. Общее состояние подъездов, коммуникаций, соседей для дома, которому овер 20 лет - это потенциальная нервотрепка (если речь о высотках). Т.е. лет через 10 подъезды, двери, лифты будут выглядеть грустно. Общие стояки начнут сыпаться, чьи-то батареи начнут течь, кто-то сопьется, кто-то кукуней двинется. Новостройка (которой лет 5) - это место по крайней мере для платежеспособных, работающих, процент неблагополучных в 100500 раз ниже. Если дом не дикий эконом, конечно.

Если это жилье - лет на 10 пожить, и двинуть дальше, то я бы просто искала с более-менее ок планировкой, где чисто обои переклеить, раковину поприличнее поставить, т.е. без глобальных взрывов.

Цитата Dogeva:

Я же правильно понимаю что поэтапно тут никак? 

Можно поэтапно где угодно. Можно жить там, где взрываешь стены. Можно перебрать всю электрику и щиток, продолжая жить здесь же. Можно даже ванную переделать с нуля. Только я такого опыта никому не пожелаю. Плавали, знаем.smiley-biggrin.gif Жизнь с проводами на голове настолько давит на общее состояние, что нинада. Если не новострой - ищите дальше, где чисто пол-стенки снес и все остальное устраивает.

На сайте c 28.02.2017
Сообщений: 2977
Omsk
Цитата Agapova:
Только я такого опыта никому не пожелаю. Плавали, знаем.

Я выросла в строящемся доме, для меня это считай родная стихия =)

Одно время даже на первом этаже вместо гостиной была деревообрабатывающая мастерская отца. Станки, стружка, в углу доски на просушку... Эххх, ностальгия... 

Есть вообще вариант сейчас махнуться жильём с мамой, она прям активно за. Но вот жить в своём доме мне совсем не хочется, да и ремонт под себя там глобальный нужен. 

Цитата Agapova:

ищите дальше, где чисто пол-стенки снес и все остальное устраивает.

Ну вот так и делаю. Флегматично продаю свою квартиру и просматриваю новые объявления. Может сойдутся звёзды в какой-то момент.

На сайте c 25.10.2009
Сообщений: 998
Сочи

Dogeva, тоже очень злюсь, что в объявлениях почти никто не выкладывает планировки. Да это ж самое важное, блин. И очень важен вид из окна,  это ж как неотъемлемая часть квартиры. Ну что сложного на одну фотку больше выложить? Подъезды тоже важны, порой ремонт приличный, но добираться до собственной квартиры в грязной полутьме, перешагивая через чужие коляски - брр.

Но в объявлениях люди упорно лепят фото своих богатств - полиуретановые резные изголовья, развешенные штаны на сушилке, шторы в три ряда. Да какая ценность в этом для другого человека, оно ж все на помойку пойдет? Люди ж покупают локацию, им плевать на цвет обоев, все равно каждый для себя по-своему сделает. Наболело прямо.

На сайте c 17.03.2020
Сообщений: 3708
spb
Цитата Agapova:

Но в объявлениях люди упорно лепят фото своих богатств - полиуретановые резные изголовья, развешенные штаны на сушилке, шторы в три ряда. Да какая ценность в этом для другого человека, оно ж все на помойку пойдет? Люди ж покупают локацию, им плевать на цвет обоев, все равно каждый для себя по-своему сделает. Наболело прямо.

Это в вас профдеформация говорит :) люди в массе как раз слабо понимают ценность пространства и его ориентации, пока их в него прям не натыкаешь.

Для основной массы людей работает ложная установка: чем большее богатство в отделке я покажу/заявлю, тем дороже смогу продать. тем более прибавлю ценности и качества словами "для себя делал".

На сайте c 02.07.2014
Сообщений: 4450
Ярославль, Москва

Ну фиг знает. Если готовая кухня другого цвета, но не надо возиться с монтажом, то пожалуй смирюсь и не стану делать всё заново. С санузлом и ванной комнатой, тоже самое

На сайте c 25.10.2009
Сообщений: 998
Сочи
Цитата madYuppie:

Для основной массы людей работает ложная установка: чем большее богатство в отделке я покажу/заявлю, тем дороже смогу продать. тем более прибавлю ценности и качества словами "для себя делал".

верю, понимаю, и тем не менее одну и ту же квартиру можно сфоткать по-разному. Сам не умеешь - ну потраться ты на фотографа. Хотя сейчас уже риэлторы даже вполне научились высветлять фотки, убирать висящие провода и чужие штаны)). Ту же нищую классику из последней квартиры можно сфоткать так, что на любителя влет уйдет:) Да, профдеформация, которая порой мешает жить. Но красиво фоткать еду умеет уже каждая девочка в 13 лет. Что мешает то же с квартирами делать? 

Разве чужое добро представляет из себя какую-то ценность? Покупаем-то локацию, соседей, приятный подъезд, хороший вид. Школы-садики для детных. Паркоместо для автовладельца. Цвет и форму один шут делаем для себя. Сколько квартир сделала - ни разу две одинаковые семьи не видела).

Может, поэтому многие и предпочитали первичку покупать. Там хоть планировки есть. Хотя бы карандашом можно почиркать, прикинуть, что и как войдет.

На сайте c 17.03.2020
Сообщений: 3708
spb
Ну в СПб уже достаточно давно де-факто стандарт в объявлениях планировки прикладывать. Без планировок зачастую даже не смотрят. Особенно это актуально для старого фонда, по объективным причинам )))
На сайте c 28.02.2017
Сообщений: 2977
Omsk
Цитата Agapova:
Ту же нищую классику из последней квартиры можно сфоткать так, что на любителя влет уйдет:)

Какой дивный термин «нищая классика» =)))  Это кстати фото от риэлтора, поприличнее. От собственника вообще был мрак.

Кстати многие на запрос фото планировки отвечают «приходите смотрите», а риэлторы «оставьте номер телефона, мы позвоним и всё расскажем». Не понимают про планировку от слова вообще. 

На сайте c 25.10.2009
Сообщений: 998
Сочи
Цитата Dogeva:

Какой дивный термин

А это я у своего заказчика из лексикона позаимствовала. Кажись, даже писала уже где-то). Много-много лет назад мебель выбирали не в интернетах, а вживую. Огромный тц, сибирская провинция, целый этаж заставлен мебелью из китаев. Кровати из пенопласта с позолотой, львы с глазами под изумруд (пластик цветной), в воздухе запах, как от китайских тапочек, этих неубиваемых, знаете. Народу полно, люди примеряются к мебели, кто шкаф открывает-закрывает, кто на кровати сидит, кто вензеля на обеденном столе царапает (краска отваливается прямо от касания, зато вензеля на месте).

Заказчик из СпБ, для него существуют только два цвета: черный и белый, все остальные цвета - для девочек. И вот он широким шагом пробежался вправо по залу, потом влево по залу, в глазах недоумение, как вот у этого кота из мема. Типа, зачем это произвели, куда это ставить, кто все эти люди, которые это трогают и хотят купить, и почему не купить честные минималистичные опилки вместо вот этих инкрустаций, напечатанных на клеенке. И сказал: это ж как надо бедно жить, чтобы вот все это хотеть.

С тех пор как вижу подобный нищий люкс, всегда его вспоминаю.

На сайте c 28.02.2017
Сообщений: 2977
Omsk
Вернусь к теме компов. К кому на форуме можно обратиться для подбора комплектации?
На сайте c 04.09.2008
Сообщений: 15070
Уфа
Dogeva, актуальные конфигурации. стен
Читают эту тему: