WIP Dogeva (интерьерные визы)

Автор
Сообщение
На сайте c 28.02.2017
Сообщений: 2978
Omsk

Цитата Agapova:
И вот такую систему можно, если мебельщик с руками и заморочен на результат. Это чтобы на посудомойке ручек не было.

Это получается по сути имитация той же гола?

По мебелям ещё подскажите куда смотреть со шкафами-купе. Чтобы максимально аккуратно. Вот такой хозшкаф в санузле (можете заодно по освещению попинать):

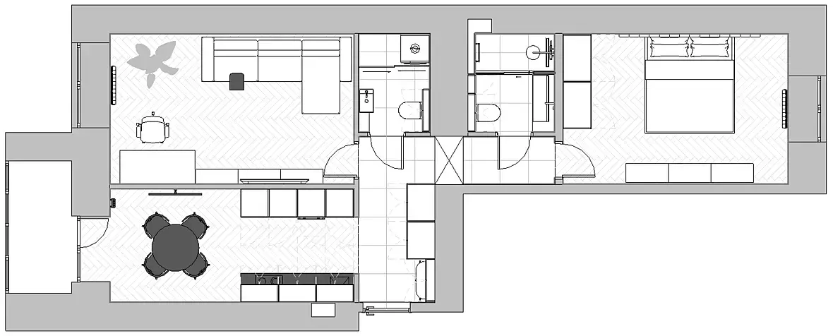
По планировке решила остановиться на таком варианте (напомню что проект учебный, поковырять ревит и рендер):

Стену между гостиной и туалетом нужно делать из гипсокартона, чтобы там проложить трубы к раковине?

На сайте c 14.06.2012
Сообщений: 16519
Москва
Цитата Dogeva:
Стену между гостиной и туалетом нужно делать из гипсокартона

Звукоизоляция у него ни к чёрту, и всё остальное тоже.
Трубы к раковине можно заштробить и в блок. Для канализации к такой раковине вообще хватит 30мм диаметра трубы.

Пазогребневые водостойкие блоки для ванной. Зелёные такие. 

На сайте c 17.03.2020
Сообщений: 3611
spb
Цитата Dogeva:

Стену между гостиной и туалетом нужно делать из гипсокартона, чтобы там проложить трубы к раковине?

По нормативам - надо из блоков и двойную (т.к. раковина и трубы воды и канальи расположены на стене жилой комнаты). Или двойную из ГКЛ. То есть одна стена - это стена туалета, на нее все крепится. А в комнату смотрит уже другая стена, на относе 20-40 мм. от первой.

В принципе можно использовать сплошные блоки типа меликон-полар толщиной 80 мм., они для двойной стены дают нужный индекс звукоизоляции

На сайте c 28.02.2017
Сообщений: 2978
Omsk
Цитата madYuppie:
По нормативам - надо из блоков и двойную

А как считается граница мокрых зон? По внутреннему периметру или внешнему? Если я скажем нарощу стену в сторону гостиной

На сайте c 25.10.2009
Сообщений: 996
Сочи

Dogeva, по внешнему периметру. Толщина стен за счет сужения ванной.

Я за гипсокартон (хотя строители, конечно же, сделают по-своему). Справа и слева от канальи - профиль, со стороны ванной - два слоя влагостойкого гвл (2*12,5 мм), со стороны ванной - два слоя гвл или гкл той же толщины. Внутрь минвату, глухо будет, как в танке.

Фото из гуглов, но смысл вот такой.

На сайте c 28.07.2013
Сообщений: 1613
KZ17
Цитата Yehat:
Звукоизоляция у него ни к чёрту, и всё остальное тоже.

Спорный вопрос.

Цитата Agapova:
Я за гипсокартон (хотя строители, конечно же, сделают по-своему). Справа и слева от канальи - профиль, со стороны ванной - два слоя влагостойкого гвл (2*12,5 мм), со стороны ванной - два слоя гвл или гкл той же толщины. Внутрь минвату, глухо будет, как в танке.

Поддерживаю, еще лучше если с внутренней стороны аквапанель. На сколько помню кнауф сами рекомендуют, как минимум для крупноформатной плитки. И за счёт разницы плотности еще улучшится шумоизоляция. Ну и мин. вату желательно акустик.
Если шумоизоляция важна, то еще мембранку проклеить из разряда шумоизоляции. Все швы между листами обязательно герметизируются, в общем технология соблюдается. И в этом случае, думаю она точно будет лучше глушить чем кирпич и тем более какой то пазогребень или газоблок.     

На сайте c 17.03.2020
Сообщений: 3611
spb
Цитата Tema001:
Спорный вопрос.

 

Здесь надо иметь в виду, что Кнауф дает индекс звукоизоляции для случая, когда перегородка выполнена из акустического ГКЛ и заполнена специальной акустической минватой. Они сами пишут в примечаниях в альбомах технических решений. И такое решение не вполне применимо для большинства случаев. Поэтому реальная звукоизоляция из "обычного ГКЛ и минваты со стройрынка" будет гораздо хуже

На сайте c 25.10.2009
Сообщений: 996
Сочи
Цитата madYuppie:
Поэтому реальная звукоизоляция из "обычного ГКЛ и минваты со стройрынка" будет гораздо хуже

Думаю, в учебном проекте это не так важно). Можно зашить все в 4 слоя с правильной ватой, а потом заказчик купит дверь в леруа за двадцаткуsmiley-biggrin.gif. И весь шум пойдет через нее.

Автор, у кнауфа есть каталог решений, как они имеют в виду https://www.knauf.ru/documents/tehnicheskie_dokumenty/albomy_rabochih_chertezhey/ 

Там есть и пдф, и кад, и ревит узлы в свободном доступе.

Стена из ГКЛ получается звонкой, непрочной и с плохой шумкой только в случае, если собрана как попало: стойки установлены редко, гкл самой дешевой серии в 1 слой, саморезы вкручены как попало по краешку, до потолка не довели стену как следует, сэкономили на всяких вставочках-уплотнителях. Хорошо собранная стена - камазом не пробьешь. Если придерживаться решений из каталогов и следить за строителями, все получается гуд.

На сайте c 28.07.2013
Сообщений: 1613
KZ17
Цитата madYuppie:
Здесь надо иметь в виду, что Кнауф дает индекс звукоизоляции для случая, когда перегородка выполнена из акустического ГКЛ и заполнена специальной акустической минватой.

Таблица не из кнауф, про акустическое КГЛ ни слова, про заполнение мин ватой тоже. 

Цитата madYuppie:
Поэтому реальная звукоизоляция из "обычного ГКЛ и минваты со стройрынка" будет гораздо хуже

Человек который закупается не пойми чем, и делает ему не пойми кто, скорее всего разницы не почувствует. Да и не особо ему есть дело до этого.  

На сайте c 17.03.2020
Сообщений: 3611
spb
Цитата Tema001:
Таблица не из кнауф, про акустическое КГЛ ни слова, про заполнение мин ватой тоже. 

а какой в таком случае смысл от вашей таблички? если там не пойми что собранное не пойми кем? таблица категории "член на заборе" :)

На сайте c 28.02.2017
Сообщений: 2978
Omsk
Ну начался гипсокартонный срач =) А я вообще-то больше про шкаф-купе спрашивала =)
На сайте c 17.03.2020
Сообщений: 3611
spb
имхо, если есть место для открывания дверок, то здесь удобнее обычный, даст большую зону доступа. или с дверками, собирающимися в гармошку
На сайте c 25.10.2009
Сообщений: 996
Сочи
Цитата Dogeva:
 я вообще-то больше про шкаф-купе спрашивала =)

Я вопрос не поняла) бренды какие или как крепить? Или про что?

Закладную под потолок в месте крепления верхнего трека. Брусочек какой-нибудь.

А там... ну Аристо, например. Тьма китайских брендов в МакМарте. РаумПлюс ушел, наверное, я хз, уже тыщу лет купе не использовала.

На сайте c 28.07.2013
Сообщений: 1613
KZ17
Цитата madYuppie:
а какой в таком случае смысл от вашей таблички? если там не пойми что собранное не пойми кем? таблица категории "член на заборе" :)

Там написано из чего, кстати просите, мин. вата присутствует. Или всё что не кнауф для вас не авторитет?

  

Цитата Dogeva:
А я вообще-то больше про шкаф-купе спрашивала =)

Тоже не понял что вы хотели узнать.  

На сайте c 17.03.2020
Сообщений: 3611
spb
Цитата Tema001:
Там написано из чего, кстати просите, мин. вата присутствует. Или всё что не кнауф для вас не авторитет? 

Хорошо, расшифрую негатив: в вашей таблице не указано, какие это листы ГКЛ (они есть разные по толщине и по материалу), какой каркас, какой плотности минеральная вата. Любой из этих параметров влияет на звукоизолирующую способность.

Мне все равно, кто разработчик. Если у него есть действующие официальные документы, подтверждающие заявленные характеристики - то вопросов нет вообще. Если есть вменяемые рекомендации и альбомы технических решений, то еще лучше. 

На сайте c 28.07.2013
Сообщений: 1613
KZ17
Цитата madYuppie:
Хорошо, расшифрую негатив: в вашей таблице не указано, какие это листы ГКЛ (они есть разные по толщине и по материалу), какой каркас, какой плотности минеральная вата. Любой из этих параметров влияет на звукоизолирующую способность. Мне все равно, кто разработчик. Если у него есть действующие официальные документы, подтверждающие заявленные характеристики - то вопросов нет вообще. Если есть вменяемые рекомендации и альбомы технических решений, то еще лучше. 

 Во первых, не всё из того что вы просите не указано в таблице. Читайте, там всё просто. Во вторых эта таблица должна была, даже не вам, показать что система может работать. То что вы требуете, это детали, не относящиеся к сути вопроса. 

На сайте c 17.03.2020
Сообщений: 3611
spb

я ничего не требую :) лучше помогите по шкафу-купе

На сайте c 28.02.2017
Сообщений: 2978
Omsk

Вопрос был про форму этих треков. Получается плюс-минус одинаковая конструкция и ширина? И без нижнего профиля никак, будут гулять двери? А верхний в потолок не прячут?

У меня есть такие двери, что-то простое из леруа. Выглядит вообще не лакшери =(  На фоне скрытых плинтусов и дверей такое себе. Думала может есть лакшери-решение.

Цитата madYuppie:
имхо, если есть место для открывания дверок, то здесь удобнее обычный, даст большую зону доступа. или с дверками, собирающимися в гармошку

Там полотенчик на стене, одна дверка не откроется полностью

На сайте c 21.01.2019
Сообщений: 6348
Только чтение

флейм

Дата выдачи:
03.11.2025 13:50:05

Действует до:
18.11.2025 00:00:00
Можно спросить глупый вопрос у специалистов? ) Сейчас существует куча всяких материалов для шумоизоляции авто. Будет ли эффективным покрытие стены из гипсокартона какой-нить мастикой, которая используется для шумоизоляции, например, колесных арок автомобилей?
На сайте c 28.07.2013
Сообщений: 1613
KZ17
Цитата Dogeva:
Вопрос был про форму этих треков. Получается плюс-минус одинаковая конструкция и ширина? И без нижнего профиля никак, будут гулять двери? А верхний в потолок не прячут? У меня есть такие двери, что-то простое из леруа. Выглядит вообще не лакшери =(  На фоне скрытых плинтусов и дверей такое себе. Думала может есть лакшери-решение.

Конструкции есть разные, но плюс минус они рядом.
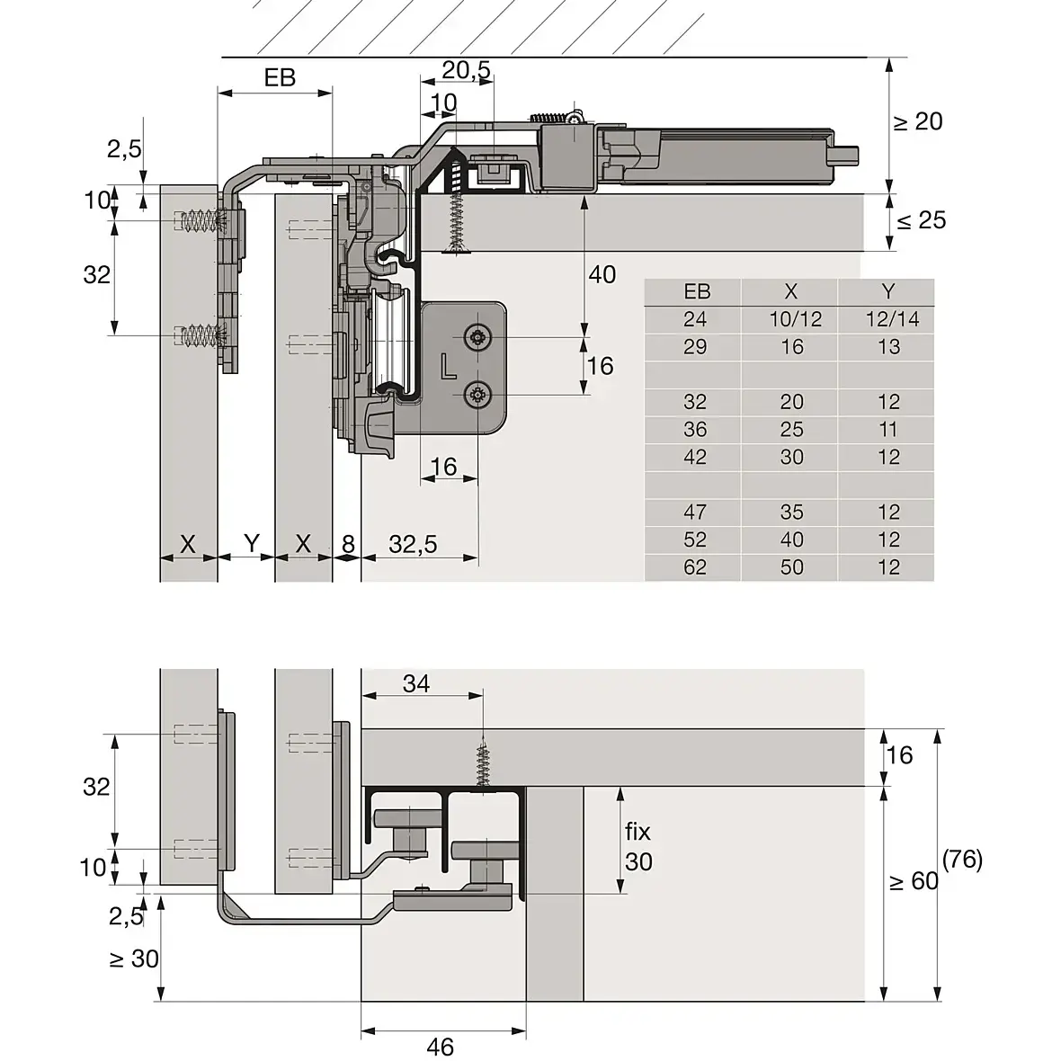
Рассмотрим то, что вам нужно организовать шкаф из стен потолка с полом и дверей купе, если нижняя шина устраивает и используем самое простое, тогда то что вам Agapova предложила. Спрятать в потолок верхнюю шину можно, примерно  по тому же прицепу как ниша для штор. Если шина нижняя не устраивает то смотрите в сторону подвесных систем, снизу не будет шины, будет направляющий стержень в то или ином виде, который будет удерживать двери от болтанки, но болтанка всё равно будет больше чем в первом варианте.
А если мы рассмотрим вариант что мы делаем полноценный шкаф, тогда поле расширяется. Там и накладные могут быть системы, когда фасад закрывает и крышки и боковины. А не как распространено, фасад между верхней и нижней крышкой, так и накладные с опцией монтажа дверей в одну плоскость. В обоих случаях вы не будете видеть ни верхней не нижней направляющей, все механизмы прячутся над крышкой сверху и под крышкой снизу. 

https://www.youtube.com/watch?v=HaThC29LPX8 


   

Читают эту тему: